Imagine 64

Vanzare apartament 2 camere bloc nou Unirii

ID: P254310 Bucuresti, P-ta Sfanta Vineri 6
235.000€
Descriere
Vă propunem spre vânzare o locuință care îmbină perfect confortul, eleganța și o locație excelentă.

Proprietatea se remarcă printr-un ambient cald și primitor, spații bine compartimentate și lumină naturală din abundență, fiind ideală atât pentru locuit, cât și pentru investiție. Fiecare detaliu contribuie la crearea unui stil de viață confortabil și relaxant.

📍 Unul dintre marile avantaje este poziționarea — situată în apropierea Liceului Laude-Reut, cu acces rapid către puncte de interes, instituții de învățământ, zone comerciale și mijloace de transport.

💰 Preț: 235.000 € (ușor negociabil)

Dacă sunteți în căutarea unei locuințe care oferă echilibru între liniște și accesibilitate, această proprietate merită cu siguranță atenția dumneavoastră.

📞 Pentru mai multe detalii sau pentru programarea unei vizionări, vă stăm cu drag la dispozitie!
Caracteristici
  • ID:P254310
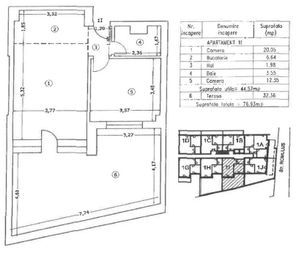
  • Nr. camere:2
  • Nr. dormitoare:1
  • S. utila:45.00 mp
  • S. utila totala:77.00 mp
  • S. construita:81.00 mp
  • Comp.:Decomandat
  • Confort:Lux
  • Etaj:Etaj 1
  • Nr. bucatarii:1
  • Nr. bai:1
  • An constructie:2016
  • Structura:Beton
  • Tip imobil:Bloc
  • Regim inaltime:P+5
  • Orientare:Sud-Est
  • Clasa energetica:A
Specificatii
Curent
Apa
Canalizare
Gaz
CATV
Fibra optica
Centrala proprie
Calorifere
Aer conditionat
Izolatie Exterior
Izolatie Interior
Vopsea lavabila
Faianta
Parchet
Gresie
Ferestre Termopan
Usa intrare Lemn
Usa interior Lemn
Terasa
Dressing
Bucatarie Mobilata
Bucatarie Utilata
Contor gaz
Mobilat Lux
Videointerfon
Lift
Localizare
Georgiana Nita
Esti interesat de aceasta proprietate ?